This group design project was a part of the ‘Cities and Sustainable Infrastructure’ class in the Department of Civil, Material, and Environment Engineering at UIC. The goal was to re-think the possibilities of the development in Chicago’s South Loop named “The 78” – the new proposed neighborhood in Chicago.
For more than fifty years, this 62-acres piece of land right outside of Chicago’s central business district and north of Chinatown was abandoned. It was not a land preserve, it was not a park, and neither was a neighborhood. The area was literally under the water until 1920-30s, when the city decided to straighten the river to better connect remote areas of Chicago to the Loop. Then, in 2002 the businessman Tony Rezko purchased the lot (after that, this area was commonly known as “Rezkoville”) to build big-box buildings with fancy apartments, however without success.

Image source: Google Maps
In 2016, the new history of the area started. Related Midwest (who acquired this brownfield space) and Skidmore, Owings & Merrill stated their intentions to participate in this mega-development project and create a new neighborhood which will become the 78th neighborhood in Chicago that will consist of several offices and residential towers, high-rises, river park, and a research center called the Discovery Partners Institute, which will be operated by the University of Illinois.
Make no little plans. They have no magic to stir men’s blood and probably
Daniel Burnham, 1909
will not themselves be realized


Photo credits: Skidmore, Owings & Merrill and http://www.78chicago.com
This project has been significantly criticized due to its expenses, potential gentrification, and subsequent inequity that will increase in the area. Experts compare it with other mega-projects being under development in the region, such as Hudson Yards in New York or Lincoln Yards in Chicago North Side (which also got a lot of critiques).
Our group project
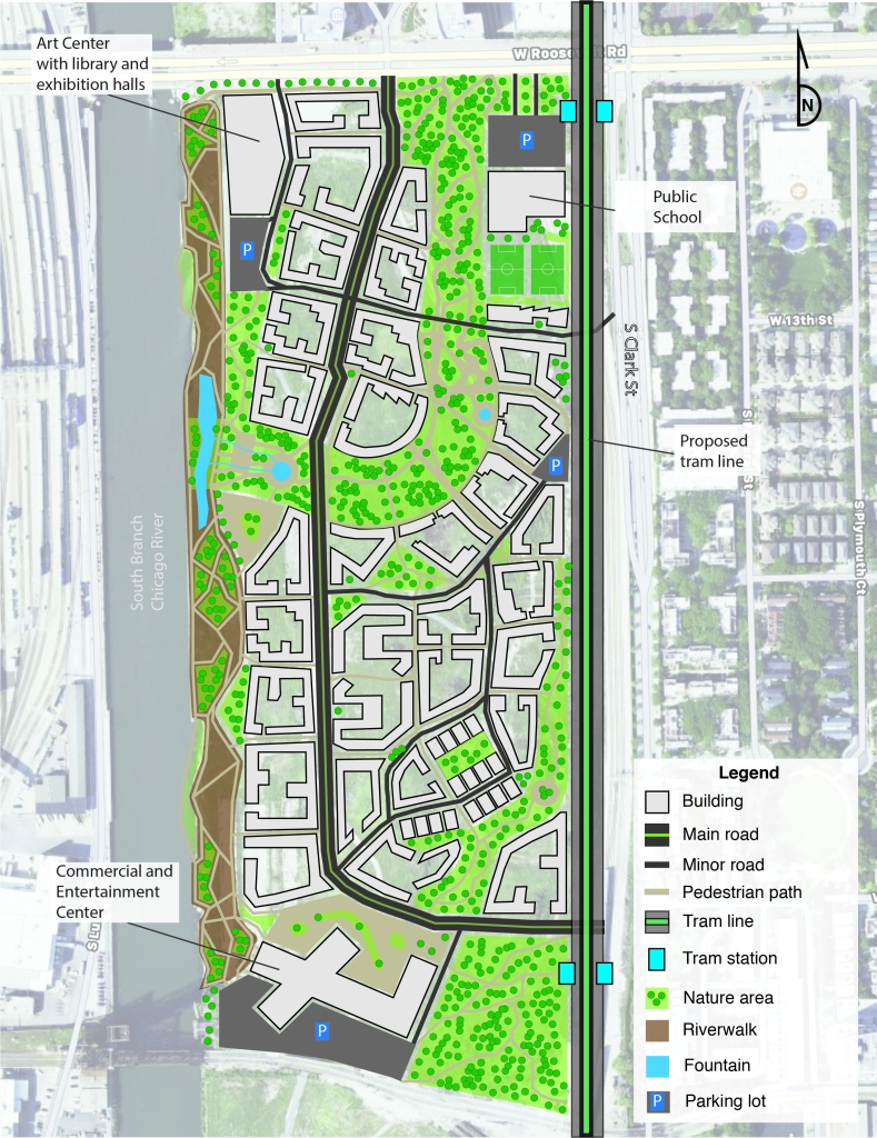
The goal for this term project was to think about the alternative design for this area with having sustainability as a central objective and make conceptual sketches that could be used as a starting point. Our group had many dimensions in mind that we tried to implement accessible transportation, human-scale development, sustainable waste management procedures, green areas, and access to the river.
The overall plan includes 31 multi-housing units (3-5 stories), about a dozen of single-family units, as well as an Art Center with library and exhibition halls, a Commercial and Entertainment Center, and a public school. To make sure that principles of the sustainable planning are followed, there are enough green spaces, riverwalks, and storm and water management. All blocks in the neighborhood are short, so streets, pedestrian paths, and opportunities to turn corners are frequent. In most cases, individual buildings will be subservient to the needs and the character of the place as a whole.

One of the central concepts was to create mix-use development based on human-scale principles of the development (a.k.a without high-rise buildings, wide streets, and giant retail centers. It is the kind opposite the first citation from Daniel Burnham’s 1909 Plan of Chicago that I have at the top of the page, and which seems controversial and probably outdated in today’s urban planning context. In this project, we tried to create a living space where residents can belong and feel themselves as the center of the urban environment. The main principle for us was “having eyes on the street,” which comes from Jane Jacobs’ famous work titled The Death and Life of Great American Cities (1961), which focuses on creating safer and more lively, and enjoyable neighborhoods. We tried to create and restructure urban areas to reflect a new set of priorities in which the needs of people – like pedestrians, cyclists, the young, the old, and generally everyone – take precedence over the usual economic expediency.



We are proposing three main points of the attraction and many small points. On the Northside of the neighborhood (intersection of Roosevelt and Chicago River), there is an Art Center with a library and exhibition halls. On the South Side, there is a commercial and entertainment building with a cinema, offices, co-working areas, as well as a community center for everyone.


Proposed designs of the patio in community building (on the right)

Public buildings are proposed to be built from local natural materials and be able to sustain themselves in terms of energy needs. In addition, to support the idea of creating a mixed-use development, the first floors of all buildings are open for small businesses (such as gyms, shops, grocery stores, cafes, restaurants, kindergartens, clinics, daycare, etc.)
All sketches and a plan are made by Anton Rozhkov in 2018.
Tools used: [Sketch Up] [Adobe Photoshop] [Adobe Illustrator]